식음공간 분류
GUOK|Jong-no
본문
본문
GUOK|Jong-no
DESIGN PROPOSAL
(구옥 종로)
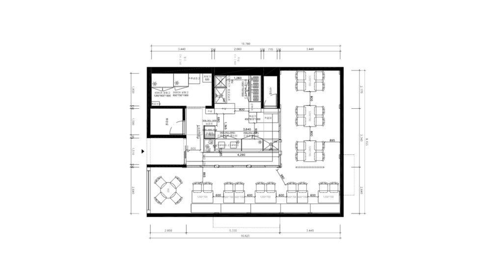
· Category / Korea Restaurant
· Site / Insadong, Jongno-gu, Seoul
· Area / 89㎡ / 27py
DESIGN CONCEPT KEY WORD
Modern Korean Vibe
newness and uniqueness
한국의 미를 담은 전통을 기본적으로 하며 현대적인 요소와 젊은 세대의 감각으로 재해석함으로써 독특하고 매력적인 공간으로 표현합니다.
한국의 전통적인 레시피를 이용한 모던하고 캐쥬얼한 다채로운 음식들을 선보이며, 절제된 공간의 담백함 안에서 다채로운 음식의 향연은 고객에게 특별한 경험을 선물합니다.
* KEY POINT
전통 한옥의 외곽 구조를 유지하면서 내부는 현대식 레스토랑 기능에 맞게 설계.
고객 동선, 직원 동선을 고려하여 효율적으로 동선 정리.
단체석, 개별 테이블, 바좌석 등 다양한 형태의 좌석 제공 고려.
레스토랑 운영을 고려한 실용적이면서도 문화적 감성을 반영.
$mb=get_member($view[mb_id]);echo $mb['mb_nick']?>
[시공사] 스튜디오파브
분류
식음공간
GUOK|Jong-no
컨텐츠 정보
- 조회 5
- 목록
| 공간분류 | 식음공간,레스토랑,한식당 |
|---|---|
| 주요마감재 | |
| 시공지역 | 서울 종로 |
| 업무범위 |
견적의뢰
댓글 0
등록된 댓글이 없습니다.







